R-O Residential-Office District Layout/Regulations

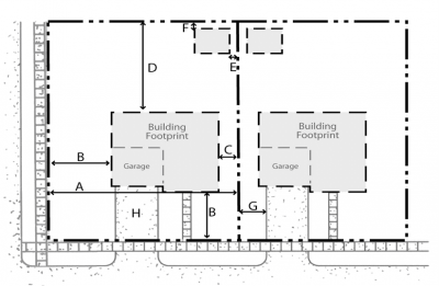
R-O Regulations Diagram

Zoning Ordinance Chapter 406 Specific Regulations Affecting Lands in the "R-O" Residential-Office District

 

Permitted Uses

  Permitted Dimensional Requirements
  • Single Family Residence
  • Duplex Dwellings
  • Insurance Offices
  • Real Estate Offices
  • Greenways, Open Spaces
  • Playgrounds
  • Professional Offices
  • Stock and Bond Offices
  A. Min. Lot width 60 ft.
B. Min. Front Yard 20 ft.
C. Min. Rear Yard 25 ft.
D. Min. Side yard Combined 20 ft.
Max Building Height 35 ft. 
  Min. Lot Area 8000 ft² refer to 406.06(6)
  Min. Unit Size 850 ft² refer to 406.06(7)

Accessory Uses

  Accessory Dimensional Requirements
  • Parking Space, Carports
  • Garage < 768 ft²
  • Accessory Building < 120ft²
  • Decorative Landscaping
  • Pool, Tennis Court
  • Parking Canopy
  • Portable Garage
  • On-Premises Signs
  Max accessory Height 15 ft.
Min. accessory distance 5 ft. from principal building
E. Min. accessory distance 8 ft from side lot line
F. Min. accessory distance 3 ft from the rear lot line
Visibility Triangle 33 ft. corner curb line
Conditional Uses
  • Multiple family dwellings
  • Business service
  • Essential service structure
  • Hospital
  • Organization headquarters
  • Private clubs and lodges for profit
  • Accessory buildings exceed 120 sq. ft
  • Banks
  • Business Schools
  • Funeral Homes
  • Dental Office
  • Personal Service
  • 2nd+ Garage
  • Garage w/living area above ground floor
  • Barber shops beauty salon
  • Day Nursery
  • Historic buildings
  • Museums
  • Planned unit developments
  • Garages exceeding 768ft²
  • Garage height >15ft