R-1 Single Family Residential District Layout/Regulations

R-1 District Regulations

Zoning Ordinance Chapter 402 Specific Regulations Affecting Lands in the "R-1" Single Family Residential District

 

Permitted Uses

  Permitted Dimensional Requirements
  • Single Family Residence
  • Home Occupations
  • Public Parks
  • Family Daycare
  • Playgrounds
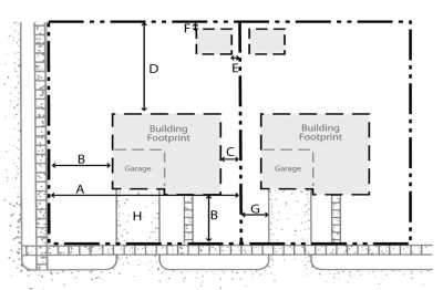
  A. Min. Lot width 60 ft.
B. Min. Front Yard 20 ft.
C. Min. Rear Yard 25 ft.
D. Min. Side yard Combined 20 ft
Max Building Height 35 ft.

Accessory Uses

  Accessory Dimensional Requirements
  • Parking Space, carports
  • Garage < 768 ft²
  • Accessory Building < 120ft²
  • Decorative Landscaping
  • Pool, Tennis Court
  • Parking Canopy
  • Portable Garage
  • On-Premises Signs
  Max accessory Height 15 ft.
Min. accessory distance 5 ft. from principal building
E. Min. accessory distance 8 ft from side lot line
F. Min. accessory distance 3 ft from the rear lot line
Visibility Triangle 33 ft. corner curb line
Conditional Uses
  • Churches, public schools, colleges
  • Professional offices
  • Accessory buildings exceed 120 sq. ft
  • Garage height >15ft
  • Public libraries, museums, art galleries
  • Municipal buildings refer to 402.04(5)(6)
  • 2nd+ Garage
  • Attached garage/breezeways
  • Garages exceeding 768ft²
  • Garage w/ living area above ground floor