Building / Zoning Ordinances
Visit the Ordinances page for all city ordinances.
City Ordinances:
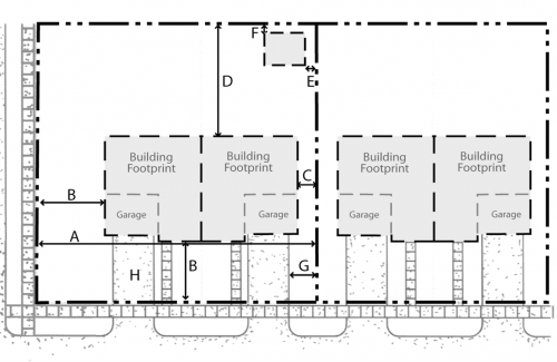
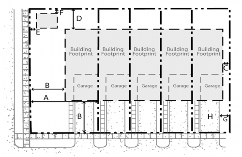
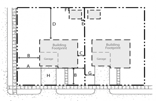
Ord. Chapter 400 Zoning:
Contents – Zoning Ord -Oct 31 2017
- 400.01 thru 400.04 Zoning Ordinance - General Provisions and Regulations
- 400.05 thru 400.11 Zoning Administration and Enforcement
- 400.12 thru 400.13 Zoning/Building Definitions
- 401 – AR Ag Residential District
- 402 – R-1 Single Family Residential District
- 403 – R-2 2 Family Residential District
- 404 – R 3-4 Family Residential
- 405 – R-5 Multi Family Residential
- 406 – R-O Residential-Office
- 407 – C-G General Business
- 408 – C-DT Downtown District
- 409 – IND Industrial
- 410 – I-P Industrial Park District
- 412 – Groundwater Protection Overlay District
- 426 Soil Erosion and Sediment Control 1978
- 455 Fire Prevention 2012
- 475 Establishing Extraterritorial Zoning
- 475 Mobile Service Support Structures as CUP
- 485 Signs
City Resolutions Zoning:





