R-3/4 Multiple Family Residential District Layout/Regulations
Zoning Ordinance Chapter 404 Specific Regulations Affecting Lands in the "R-3/4" Multiple Family Residential District
| Permitted Uses | Permitted Dimensional Requirements | |||
|---|---|---|---|---|
| 
 | Min Lot Area 
 | 
 | ||
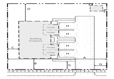
| A. Min. Lot width | 60 ft. | |||
| B. Min. Front Yard | 20 ft. | |||
| C. Min. Rear Yard | 25 ft. | |||
| D. Min. Side yard | Combined 20 ft. | |||
| Max Building Height | 45 ft. and no more than 3 stories | |||
| Min. Unit Size | 850 ft² refer to 404.05(7) | |||
| Accessory Uses | Accessory Dimensional Requirements | |||
| 
 | Max accessory Height | 15 ft. | ||
| Min. accessory distance | 5 ft. from principal building | |||
| E. Min. accessory distance | 8 ft from side lot line | |||
| F. Min. accessory distance | 3 ft from the rear lot line | |||
| Visibility Triangle | 33 ft. corner curb line | |||
| *Recreation Area on lots containing 3 or 4 dwelling units at least 300 sq. ft. shall be preserved solely for recreational use.* | ||||
| Conditional Uses | ||||
| 
 | 
 | 
 | ||
 
            
          


 
 